Aspe, Alicante

Nybygg, Villa

Til Salgs
581.000€
Valuta
Utveksling
  • Pounds: 505.761 GBP
  • Russiske rubelen: 505.761 RUB
  • Sveitsiske franc: 531.266 CHF
  • Kinesiske yuan: 4.601.171 CNY
  • Dollar: 675.587 USD
  • Svenske kroner: 6.380.542 SEK
  • Den norske kronen: 6.300.945 NOK
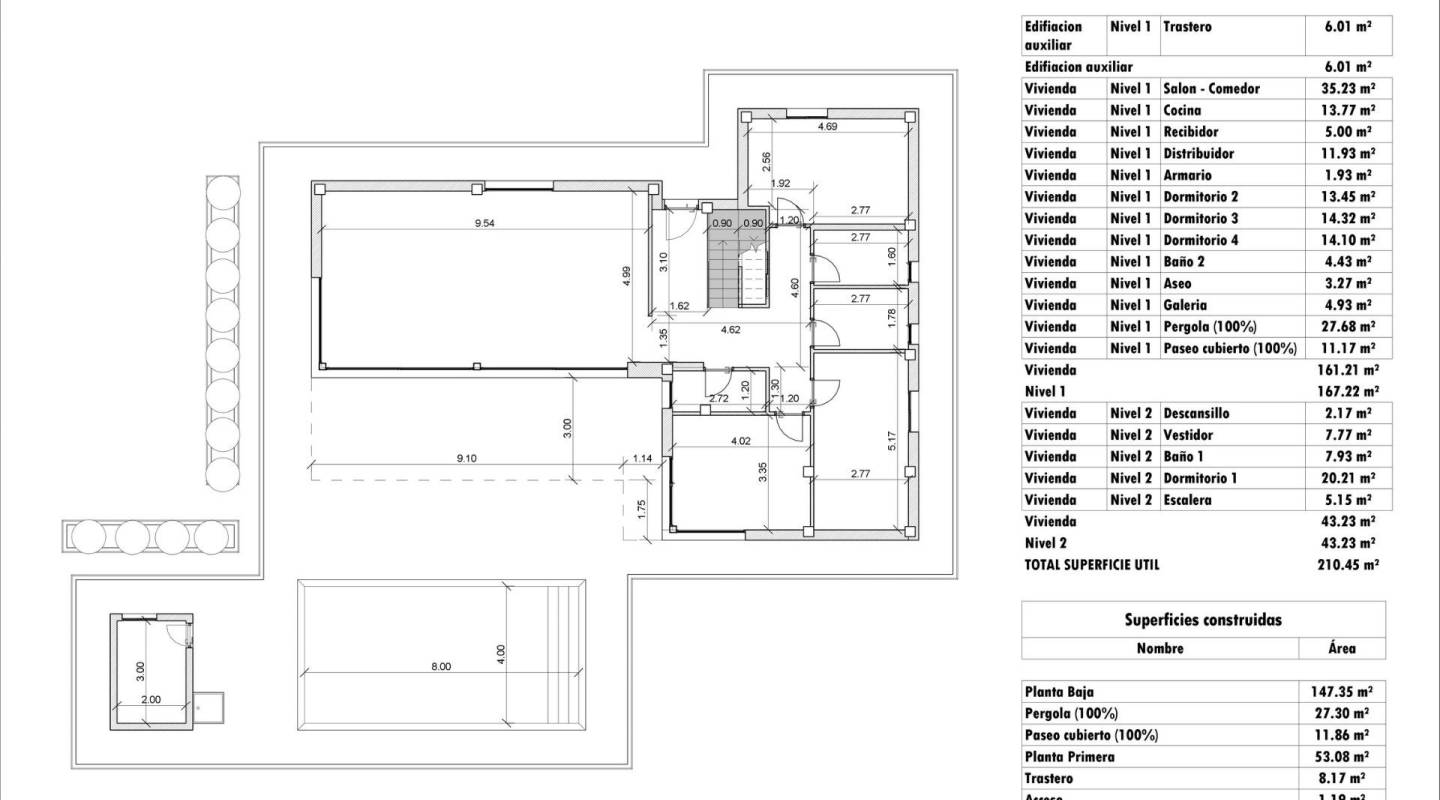
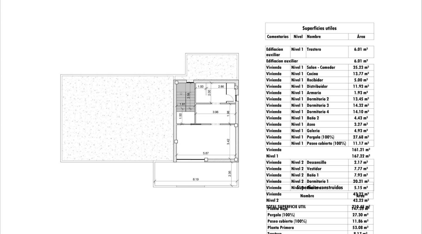
Soverom 4 Soverom
Plott 3 Baderom
13.172 M2 Plott
Hjem 248 M2 Hjem

01-83868

Fasiliteter

Soverom: 4
Baderom: 3
Inne: 248m2
Plott: 13.172m2
Energi~~POS=TRUNC: B
Hage
Privat basseng
Gated
Number of Parking Spaces: 1
Near Schools
Air Conditioning: Pre-Installed
Double Bedrooms: 4
Terrace: 38 Msq.
Location: Mountain
Parking - Space
Beach: 25000 Meters
Useable Build Space: 210 Msq.
Storage / Trastero

Om denne eiendommen

Nybyggede villaer i Aspe. Nybyggede villaer med flere modeller å velge mellom, med 2, 3 eller 4 soverom, på 1 eller 2 etasjer og bygget med plate eller struktur: avhengig av modell og valgt tomt, vil den nøyaktige prisen bli beregnet. Alle villaene bygges på rustikke tomter på over 10 000 m2, hvorav ca. 2500 m2 vil bli inngjerdet. Villaene har åpen kjøkkenløsning med stue, innebygde skap, privat svømmebasseng, veranda, bod og utendørs parkeringsplass. Det er flere tomter å velge mellom. For prisberegningen er det lagt til grunn en tomt til en pris av 75 000 euro (hvis du velger en annen tomt, betales differansen i henhold til prisen på denne). Prosjektet er selvbygg, og levering skjer ca. 12 måneder etter at byggetillatelsen er gitt. Hvis du er ute etter et rolig miljø, nær typiske spanske landsbyer langt fra turistmassene, omgitt av fjell, med en svært stor tomt og ca. 30 minutter fra havet, er dette huset for deg. Aspe er en typisk spansk landsby med alle daglige tjenester, omgitt av fjell og med flere naturområder i nærheten hvor du kan gå på tur eller sykle på terrengsykkel. Ligger 25 km fra stranden, 9 km fra Elche og ca. 20 km fra Alicante flyplass.

Plassering

Interessert i
01-83868?

Responsable del tratamiento: , Finalidad del tratamiento: Gestión y control de los servicios ofrecidos a través de la página Web de Servicios inmobiliarios, Envío de información a traves de newsletter y otros, Legitimación: Por consentimiento, Destinatarios: No se cederan los datos, salvo para elaborar contabilidad, Derechos de las personas interesadas: Acceder, rectificar y suprimir los datos, solicitar la portabilidad de los mismos, oponerse altratamiento y solicitar la limitación de éste, Procedencia de los datos: El Propio interesado, Información Adicional: Puede consultarse la información adicional y detallada sobre protección de datos Aquí.

© 2026 Villas Blanca Real Estate Agents · Juridisk merknad · Cookies · Privatliv · Web kart · Design: Mediaelx

WhatsApp